ID CP2836077

Grădina Icoanei – vilă cu potențial multiplu

ID CP2836077

1,470,000 €

Casă / Vilă cu 12 camere de vânzare
Gradina Icoanei, Bucuresti
379 mp
1945

CityImob Invest vă propune spre vânzare o proprietate rară și cu adevărat specială, amplasată în inima cartierului Grădina Icoanei, chiar lângă Biserica Anglicană – o frumoasă zonă a Capitalei. În acest perimetru unic, astfel de case apar foarte rar pe piață.

Construită în 1945, locuința păstrează eleganța arhitecturii de epocă, având pereți din cărămidă și planșeu de beton între parter și demisol. De-a lungul timpului au fost realizate lucrări de întărire a structurii, iar la începutul anilor 2000 casa a fost renovată integral, inclusiv cu refacerea fațadei.

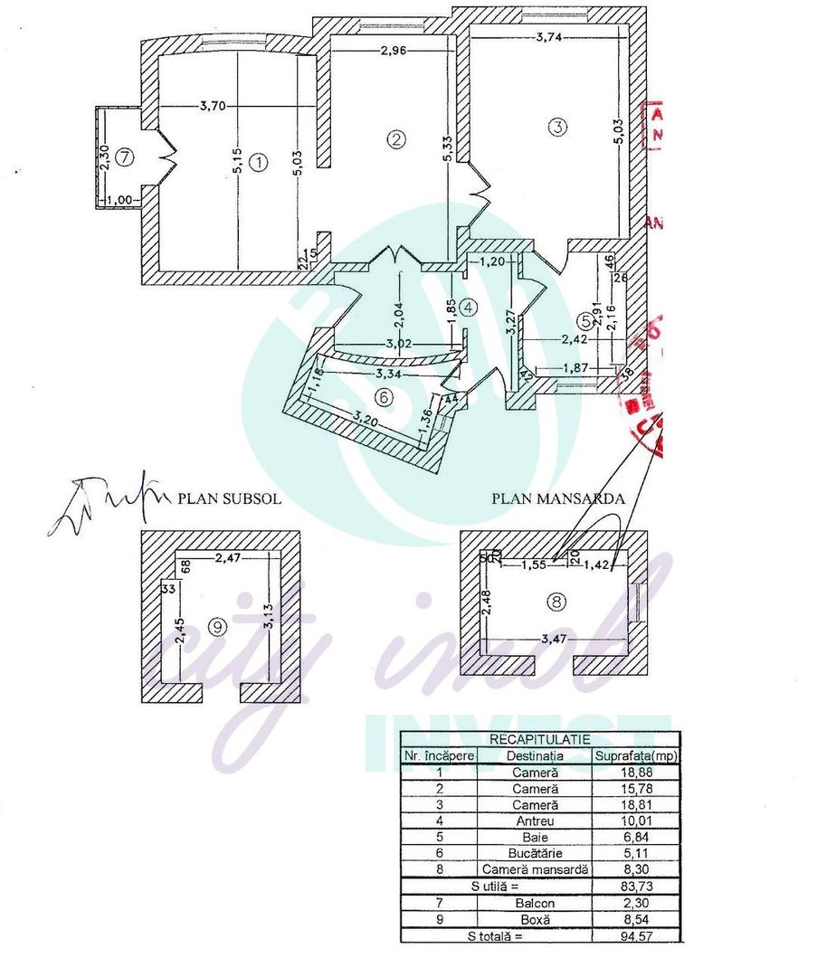
Proprietatea se desfășoară pe demisol, parter, două etaje și mansardă locuibilă, însumând aproximativ 400 mp.

• Parterul și cele două etaje au câte aproximativ 75 mp utili, potriviți atât pentru locuit, cât și pentru activități profesionale.

• Demisolul oferă 65 mp utili – ideal pentru depozitare, spații tehnice sau funcțiuni conexe.

• Mansarda, complet amenajată (75 mp), este un spațiu luminos și versatil, ușor de adaptat în funcție de destinația dorită.

La parter, o terasă de circa 50 mp creează un spațiu intim și liniștit, o oază de aer liber chiar în mijlocul orașului.

Un alt avantaj important îl reprezintă cele două scări – una principală și una secundară, precum și accesul direct din stradă, ceea ce face ca imobilul să fie extrem de flexibil.

Proprietatea poate fi compartimentată în apartamente individuale, dar poate găzdui la fel de bine funcțiuni mixte: spații Horeca, rezidență, birouri, studio-uri sau cabinete.

Versatilitatea, poziționarea excepțională și caracterul arhitectural deosebit transformă această casă într-o oportunitate de investiție cu adevărat rară.

Pentru mai multe informații sau pentru a programa o vizionare, vă rugăm să ne contactați.

Oferim consultanță GRATUITĂ pentru achiziții prin credit ipotecar!

⚠️ Certificatul energetic va fi disponibil la vânzare.

Vizionarea se face pe baza semnării unui acord conform art. 2.096-2.102 din Codul Civil.

Citește mai mult

  • Număr camere
    12
  • Număr băi
    6
  • Geam la baie
    Da
  • Număr balcoane
    1
  • Număr terase
    1
  • Număr locuri parcare
    1
  • Disponibilitate
    Imediat
  • Tip casă
    Individual
  • Stare interior
    Necesită renovare
  • Anul finisării
    2004
  • Suprafață utilă
    379 mp
  • Suprafață teren
    150 mp
  • Suprafață curte liberă
    45 mp
  • Acoperiș
    Tablă
  • Stadiu construcție
    Finalizată
  • An construcție
    1945
  • Tip construcție
    Cărămidă
  • Număr etaje clădire
    2
  • Număr subsoluri
    1
  • Are mansardă
    Da

Facilități

Acoperiș
Aer condiționat
Apă
Apometre
Bideu
Boxă la subsol
Bucătărie închisă
Bucătărie utilată
Cabină de duș
Cadă
Calorifere
Canalizare
CATV
Centrală proprie
Contor electric
Contor gaz
Curent
Curte
Debara
Faianță
Ferestre PVC
Frigider
Gaz
Geamuri termopan
Gresie
Hotă
Iluminat stradal
Internet
Magazie
Mijloace de transport în comun
Parcare deschisă
Parchet
Parchet laminat
Pivniță
Străzi asfaltate
Telefon
Ușă intrare metal
Uși interior lemn
Uși interior MDF
Vopsea lavabilă
WC Serviciu
Wireless
Zonă pentru barbeque
Andreea Manea - City Imob Invest
Andreea Manea
Associated Sales Coordinator

0725011909


Solicită chiar acum o vizionare
Telefon
Sună acum Solicită vizionare
Necesare:

Site-ul nu poate funcționa corect fără aceste cookie-uri. Vezi cookie-urile

Statistică:

Strângem statistici anonime despre voi, vizitatorii unici, pentru a vă îmbunătăți experiența dumneavoastră. Vezi cookie-urile

Marketing:

Pentru a ne promova mai eficient serviciile noastre, folosim cookies pentru a vă identifica și a vă oferi proprietăți și servicii personalizate. Vezi cookie-urile

Acest site folosește cookies, află detalii. Alege ce tipuri de cookies dorești să permitem: