ID CP3030424

Duplex exclusivist în Dorobanți-Floreasca

ID CP3030424

790,000 €

Apartament cu 4 camere de vânzare
Dorobanti, Bucuresti
93 mp
2025

Duplex exclusivist în Dorobanți-Floreasca – design unic, grădină privată, 2 terase, parcare

CityImob Invest vă oferă un duplex spectaculos, unic pe piață, situat într-un bloc boutique finalizat în 2025, într-o zonă ultracentrală, dar perfect ferită de zgomot și aglomerație.

🟢 Un concept arhitectural premium, creat de designeri de top

Materialele alese – lemn masiv, beton aparent și metal – conturează un spațiu sofisticat, modern și exclusivist, cu o atenție impecabilă la detalii.

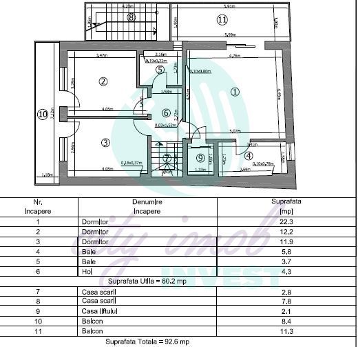
📌 Suprafață totală: 137 mp + grădină privată, subsol tehnic (33,7 mp) și 2 locuri de parcare

🔹 Parter (35 mp utili) – living generos open-space, bucătărie premium, baie, terasă spectaculoasă și grădină de 50 mp

🔹 Etaj (60 mp utili + 2 terase de 22 mp) – dormitor matrimonial cu baie și terasă privată (11 mp), două dormitoare cu acces pe terasa de 8 mp, baie suplimentară

🏡 Dotări și finisaje high-end:

✔ Lift privat cu acces direct în apartament

✔ Încălzire și răcire ultra-performante – pardoseală radiantă și ventiloconvectoare de plafon, alimentate prin pompă de căldură individuală

✔ Parchet Bauwerk din lemn natural

✔ Finisaje de excepție – băi cu terrazzo turnat cu rășină, suprafețe elegante și rezistente

✔ Tâmplărie de aluminiu cu geam tripan de 2.4 m – izolare termică și fonică perfectă

✔ Compartimentări solide din cărămidă tencuită

🏙 Un refugiu urban exclusivist – fațadă ventilată, curte interioară elegantă, un concept ce redefinește confortul și rafinamentul.

📞 Contactați-ne pentru mai multe informații sau pentru a programa o vizionare!

📌 Consultanță GRATUITĂ pentru achiziție prin credit ipotecar!

📌 Certificatul energetic va fi disponibil la vânzare.

📌 Vizionarea imobilului se face doar în baza semnării unui acord de vizionare, conform art. 2.096-2.102 din Codul Civil.

Citește mai mult

  • Tip apartament
    Apartament
  • Compartimentare
    Decomandat
  • Număr camere
    4
  • Dormitoare
    3
  • Număr bucătării
    1
  • Număr băi
    3
  • Geam la baie
    Da
  • Etaj
    Parter, 1
  • Suprafață utilă
    93 mp
  • Suprafață construită
    210 mp
  • Suprafață totală
    193 mp
  • Suprafață terasă
    20 mp
  • Suprafață curte
    50 mp
  • Disponibilitate
    Imediat
  • Orientare
    Nord-Est
  • Confort
    Lux
  • Stare interior
    Nou
  • Anul finisării
    2025
  • Număr terase
    3
  • Număr locuri parcare
    2
  • Imobil
    Bloc de apart.
  • Stadiu construcție
    Finalizată
  • An construcție
    2025
  • Construcție nouă
    Da
  • La revânzare
    Da
  • Tip construcție
    Beton
  • Număr etaje clădire
    2
  • Are demisol
    Da
  • Are mansardă
    Da

Facilități

Acces pentru persoane cu dizabilități
Acoperiș
Aer condiționat
Apă
Apometre
Boxă la subsol
Bucătărie deschisă
Cabină de duș
Cadă
Calorifere
Canalizare
CATV
Centrală proprie
Contor electric
Contor gaz
Curent
Curte
Gaz
Geamuri cu izolație fonică
Geamuri cu protecție UV
Geamuri tripan
Grădină proprie
Iluminat stradal
Încălzire prin pardoseală
Interfon
Internet
Irigații
Izolație exterioară
Loc de joacă copii
Mașină de spălat rufe
Mijloace de transport în comun
Nemobilat
Parcare biciclete
Parcare deschisă
Parchet
Scară interioară
Străzi asfaltate
Supraveghere video
Telecomandă poartă acces auto
Telefon
Ușă intrare metal
Uși interior lemn
Ventiloconvectoare
Videointerfon
Vopsea lavabilă
WC Serviciu
Wireless
Zonă pentru barbeque
Andreea Manea - City Imob Invest
Andreea Manea
Associated Sales Coordinator

0725011909


Solicită chiar acum o vizionare
Telefon
Sună acum Solicită vizionare
Necesare:

Site-ul nu poate funcționa corect fără aceste cookie-uri. Vezi cookie-urile

Statistică:

Strângem statistici anonime despre voi, vizitatorii unici, pentru a vă îmbunătăți experiența dumneavoastră. Vezi cookie-urile

Marketing:

Pentru a ne promova mai eficient serviciile noastre, folosim cookies pentru a vă identifica și a vă oferi proprietăți și servicii personalizate. Vezi cookie-urile

Acest site folosește cookies, află detalii. Alege ce tipuri de cookies dorești să permitem: