ID CP3045965

3 camere tip duplex in Catted Family - Pipera rond OMW

ID CP3045965

275,000 €

Apartament cu 3 camere de vânzare
Pipera, Bucuresti
87 mp
2025

CITY IMOB INVEST vă propune un apartament tip duplex situat intr-un imobil tip vila, boutique, cu inaltimi genroase, multa lumina si soare si o terasa ideala pentru relaxare.

Situat in proiectul Catted Family – Pipera, poziționat strategic înainte de rondul OMV, înainte de aglomerația clasică a zonei, acest apartament oferă exact acel avantaj pe care îl înțelegi abia după ce îl testezi: acces rapid 7–8 minute până la Promenada în weekend, conexiune facilă către zona de birouri Fabrica de Glucoză – Barbu Văcărescu, apropiere de Herăstrău, iar zona comerciala Pipera Plaza se afla la câteva minute pietonale.

Proiectul este unul atipic, cu bloculete mici care au aspect de case, securizat, cu alei largi, spații verzi amenajate, locuri de joacă și o comunitate deja formată.

Intim, aerisit, cu sentiment real de „acasă”, nu de ansamblu aglomerat.

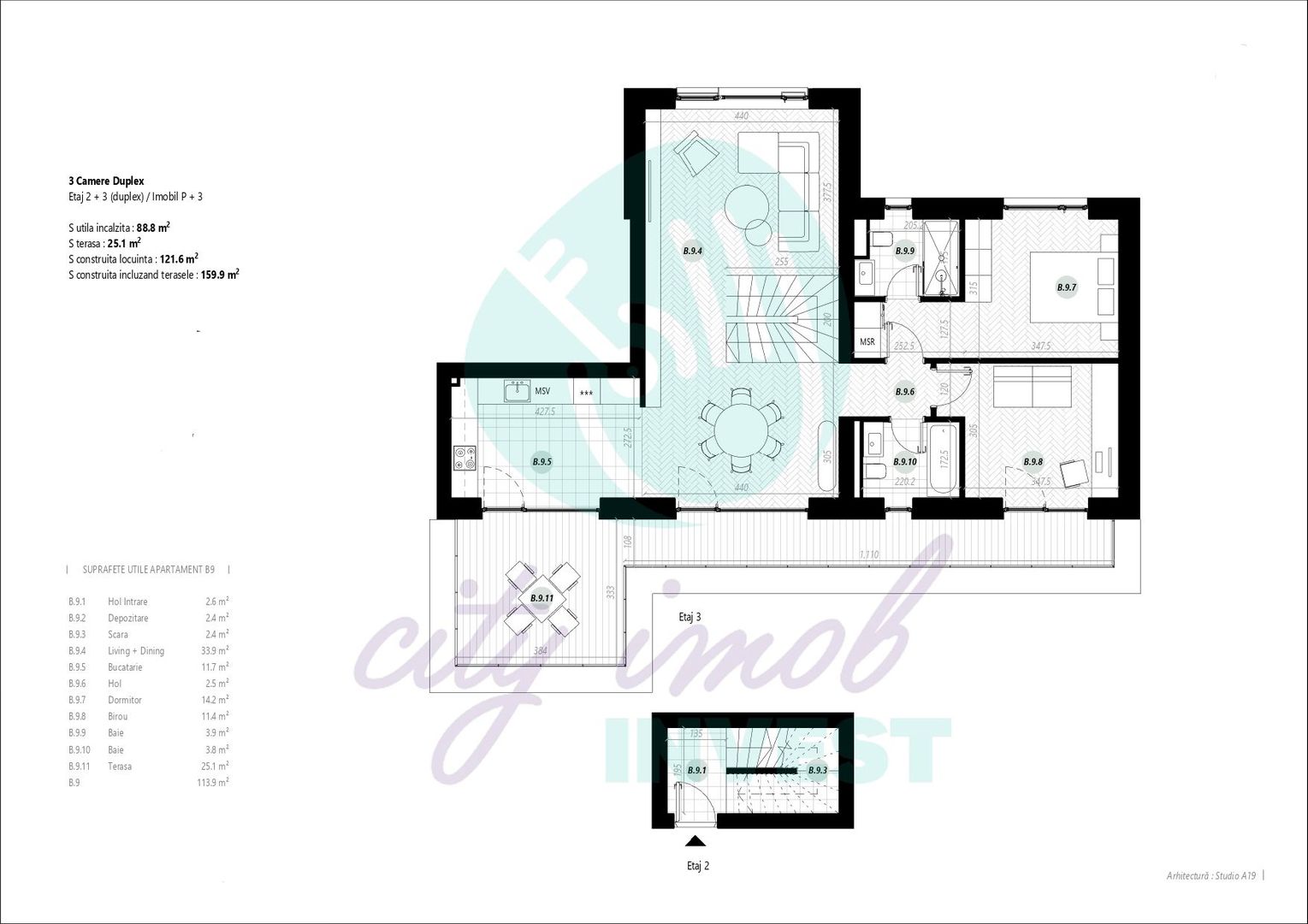
Duplexul are acces din etajul 2, pe scară proprie, iar spatiul locativ se afla integral la etajul 3, măsoară 87 mp utili (fără casa scării și terasă), cu o înălțime de 2,90 m, orientare est–vest și spatii vitrate generoase. Soarele este prezent in casa atat la rasarit, cat si spre apus.

Terasa de 26 mp adaugă acel spațiu rar întâlnit într-un apartament: loc de cafea, zonă de joacă, colț de relaxare la înălțime. Cu tot cu terasă și casa scării cu depozitare, suprafața ajunge la aproximativ 117 mp.

Se vinde la gri. Pentru că nu toată lumea vrea finisajele altcuiva. Totuși, proprietarii au comandat deja gresie si faianta marca Marazzi și parchetul din stejar natural pentru incalzire in pardoseala – materiale care pot fi păstrate sau adaptate.

Tehnic, apartamentul este peste standardul zonei:

– încălzire în pardoseală

– pompă de căldură Daikin

– răcire prin ventiloconvectoare

– trei recuperatoare de căldură Prana (câte unul în fiecare cameră)

– tâmplărie Salamander

Eficiență, control al costurilor, confort real în orice sezon.

Include loc de parcare propriu și acces la boxă comună (pentru doar 6 apartamente), iar in imobil exista doar 9 apartamente.

Nu este pentru cei care caută „gata mobilat și fără implicare”. Este pentru viitorul cumparator care doreste să-și construiască propriul spațiu într-un cadru deja premium.

Pentru familia care vrea școli bune aproape (Școala Privată Turcă, Școala Germană Hermann Oberth, Cambridge School, Școala Americană, Liceul Mark Twain, Școala Gimnazială Nr. 3, Școala Primară Nr.10. Acestea sunt localizate la câteva minute de mers cu mașina). Si, desigur, pentru persoanele active care doresc acces rapid la birou și liniște acasă.

Un duplex rar, într-un proiect rar. Restul ține de viziune.

Vizionarea imobilului se face în baza unui acord de vizionare, conform articolelor 2096–2102 din Codul Civil.

Certificatul energetic va fi pus la dispoziție la momentul vânzării.

Oferim consultanță gratuită pentru clienții care accesează credit ipotecar.

CITY IMOB INVEST – spații premium pentru cei care doresc sa aibe un spatiu unic pe care sa-l numeasca ACASA.

Citește mai mult

  • Tip apartament
    Apartament
  • Compartimentare
    Semidecomandat
  • Număr camere
    3
  • Dormitoare
    2
  • Număr bucătării
    1
  • Număr băi
    2
  • Etaj
    3
  • Suprafață utilă
    87 mp
  • Suprafață construită
    134 mp
  • Suprafață totală
    117 mp
  • Suprafață terasă
    26 mp
  • Disponibilitate
    Imediat
  • Orientare
    Est-Vest
  • Confort
    1
  • Stare interior
    Nou
  • Anul finisării
    2026
  • Număr terase
    1
  • Număr locuri parcare
    1
  • Imobil
    Casă / Vilă
  • Stadiu construcție
    Finalizată
  • An construcție
    2025
  • Construcție nouă
    Da
  • Tip construcție
    Beton
  • Număr etaje clădire
    3

Facilități

Aer condiționat
Apă
Apometre
Bucătărie deschisă
Cabină de duș
Cadă
Canalizare
CATV
Contor căldură
Contor electric
Curent
Ferestre PVC
Gaz
Geamuri termopan
Iluminat stradal
Interfon
Internet
Izolație exterioară
Loc de joacă copii
Mijloace de transport în comun
Nemobilat
Parcare biciclete
Parcare deschisă
Pompă de căldură
Străzi asfaltate
Supraveghere video
Telecomandă poartă garaj
Telefon
Ușă intrare metal
Videointerfon
WC Serviciu
Wireless
Bianca Roca - City Imob Invest
Bianca Roca
Managing partner

0737711100


Solicită chiar acum o vizionare
Telefon
Sună acum Solicită vizionare
Necesare:

Site-ul nu poate funcționa corect fără aceste cookie-uri. Vezi cookie-urile

Statistică:

Strângem statistici anonime despre voi, vizitatorii unici, pentru a vă îmbunătăți experiența dumneavoastră. Vezi cookie-urile

Marketing:

Pentru a ne promova mai eficient serviciile noastre, folosim cookies pentru a vă identifica și a vă oferi proprietăți și servicii personalizate. Vezi cookie-urile

Acest site folosește cookies, află detalii. Alege ce tipuri de cookies dorești să permitem: