ID CP2854157

Casa cu o curte libera de 700 mp | Popesti-Leordeni

ID CP2854157

265,000 € (negociabil)

Casă / Vilă cu 4 camere de vânzare
Sud-Est, Popesti-Leordeni
150 mp
2005

CityImob Invest are placerea de a va oferi spre vansare o vila edificata in 2005, situata pe o strada linistita de case in Popesti-Leordeni.

Proprietatea se desfasoara pe Subsol+Parter+Etaj+ Mansarda, cu o suprafata utila de 150 mp la care se adauga o terasa de 37 mp, doua logii si scarile de acces, avand o suprafata totala de 211 mp.

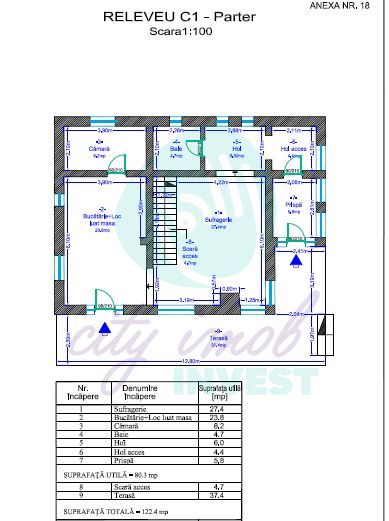
Parterul este constituit din camera de zi de 27 mp cu semineu, a carei inaltime ajunge la 3 m, bucatarie inchisa cu zona de luat masa de 24 mp, grup sanitar, camera tehnica din care se coboara la subsolul de 12 mp folosit ca spatiu de depozitare.

Etajul 1 are un dormitor matrimonial de 24 mp, un dormitor de 15 mp cu logie de 13 mp, birou de 9 mp si baie cu cada si aerisire naturala si hol de acces de 16 mp.

Mansarda, in suprafata de 113 mp, este deschisa si are sursa de apa putand fi adaptata intr-o garsoniera.

Imobilul are doua usi de acces si este pozitionat in partea din spate a unui teren de 1000 mp format din curte de 800 mp si drum de acces de 200 mp cu deschidere de 5 ml. Curtea libera poate fi amenajata in in zona de recreere cu piscina, barbeque si parcare.

Imobilul dispune de toate utilitatile, inclusiv apa, canalizare si racord la reteaua electrica de 360 V.

Nu avem informatii despre clasa energetica in care este incadrat imobilul.

In cazul in care oferta noastra a reusit sa va capteze atentia, va asteptam la o vizionare.

Acordam asistenta GRATUITA persoanelor care doresc achizionarea prin credit!

Citește mai mult

  • Număr camere
    4
  • Dormitoare
    2
  • Număr bucătării
    1
  • Număr băi
    2
  • Geam la baie
    Da
  • Număr balcoane
    2
  • Număr terase
    1
  • Număr locuri parcare
    3
  • Disponibilitate
    Imediat
  • Tip casă
    Individual
  • Stare interior
    Necesită renovare
  • Anul finisării
    2005
  • Suprafață utilă
    150 mp
  • Suprafață construită
    228 mp
  • Suprafață construită la sol (Amprentă)
    114.0 mp
  • Suprafață teren
    1,012 mp
  • Suprafață curte
    898 mp
  • Suprafață curte liberă
    698 mp
  • Suprafață terasă
    37 mp
  • Deschidere
    20 m
  • Acoperiș
    Tablă
  • Stadiu construcție
    Finalizată
  • An construcție
    2005
  • Construcție nouă
    Da
  • Tip construcție
    Beton
  • Număr etaje clădire
    1
  • Număr subsoluri
    1
  • Are mansardă
    Da

Facilități

Acces pentru persoane cu dizabilități
Acoperiș
Aer condiționat
Apă
Aragaz
Bucătărie închisă
Bucătărie mobilată
Bucătărie utilată
Cabină de duș
Cadă
Calorifere
Canalizare
CATV
Centrală proprie
Contor electric
Contor gaz
Curent
Curte
Faianță
Frigider
Gaz
Geamuri termopan
Grădină proprie
Hotă
Iluminat stradal
Internet
Mașină de spălat rufe
Mijloace de transport în comun
Mobilat parțial
Parcare biciclete
Parcare deschisă
Parchet
Pivniță
Rulouri / obloane PVC
Scară interioară
Șemineu
Străzi asfaltate
Telefon
TV
Ușă intrare metal
Uși interior celulare
Uși interior MDF
Vopsea lavabilă
WC Serviciu
Zonă pentru barbeque
Andreea Manea - City Imob Invest
Andreea Manea
Associated Sales Coordinator

0725011909


Solicită chiar acum o vizionare
Telefon
Sună acum Solicită vizionare
Necesare:

Site-ul nu poate funcționa corect fără aceste cookie-uri. Vezi cookie-urile

Statistică:

Strângem statistici anonime despre voi, vizitatorii unici, pentru a vă îmbunătăți experiența dumneavoastră. Vezi cookie-urile

Marketing:

Pentru a ne promova mai eficient serviciile noastre, folosim cookies pentru a vă identifica și a vă oferi proprietăți și servicii personalizate. Vezi cookie-urile

Acest site folosește cookies, află detalii. Alege ce tipuri de cookies dorești să permitem: