ID CP2788688
Casa cu teren de 1612 mp | Popesti-Leordeni
ID CP2788688
349,000 € (negociabil)
CityImob Invest are placerea de a va oferi spre vansare o vila edificata in 2005, cu teren de 1612 mp, situata pe o strada linistita de case in Popesti-Leordeni.
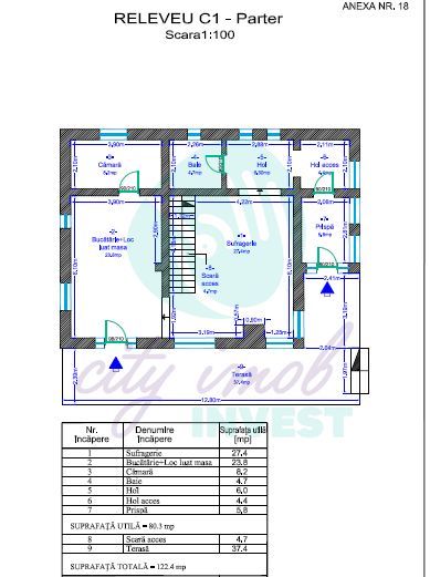
Proprietatea se desfasoara pe Subsol+Parter+Etaj+ Mansarda, cu o suprafata utila de 150 mp la care se adauga o terasa de 37 mp, doua logii si scarile de acces, avand o suprafata totala de 211 mp.
Parterul este constituit din camera de zi de 27 mp cu semineu, a carei inaltime ajunge la 3 m, bucatarie inchisa cu zona de luat masa de 24 mp, grup sanitar, camera tehnica din care se coboara la subsolul de 12 mp folosit ca spatiu de depozitare.
Etajul 1 are un dormitor matrimonial de 24 mp, un dormitor de 15 mp cu logie de 13 mp, birou de 9 mp si baie cu cada si aerisire naturala si hol de acces de 16 mp.
Mansarda, in suprafata de 113 mp, este deschisa si are sursa de apa putand fi adaptata intr-o garsoniera.
Imobilul are doua usi de acces si este pozitionat in partea din spate a terenului, avand in fata aproximativ 1400 mp de curte libera care poate fi amenajata in in zona de recreere cu piscina, barbeque si parcare.
Imobilul dispune de toate utilitatile, inclusiv apa, canalizare si racord la reteaua electrica de 360 V.
Nu avem informatii despre clasa energetica in care este incadrat imobilul.
In cazul in care oferta noastra a reusit sa va capteze atentia, va asteptam la o vizionare.
Acordam asistenta GRATUITA persoanelor care doresc achizionarea prin credit!
 
         
         
         
         
         
         
         
         
         
         
         
         
         
         
         
         
         
         
         
         
         
         
         
         
         
         
         
         
         
         
         
         
         
         
         
         
         
         
         
         
         
         
         
         
         
         
         
         
         
         
         
         
         
         
         
         
         
         
         
        