ID CP2790300

Apartament elegant | Curte generoasă | Lângă parcul Cişmigiu

ID CP2790300

330,000 €

Apartament cu 3 camere de vânzare
Cismigiu, Bucuresti
86 mp
1957

City Imob Invest vă propune spre vânzare un apartament un apartament cu farmec autentic, care păstrează eleganța arhitecturii clasice și o transpune într-o formă potrivită vieții moderne, amplasat într-una dintre cele mai fermecătoare zone ale Capitalei — la câțiva pași de Parcul Cișmigiu, într-un cadru boem, verde și liniștit.

Proprietatea se adresează celor care caută un spațiu cu caracter și rafinament clasic, potrivit atât pentru locuință familială, cât și pentru investiție premium, showroom sau birou de reprezentanță.

Imobilul boutique, edificat în 1957, are doar 8 apartamente și se remarcă prin curtea comună generoasă de 343 m², ce poate fi transformată intr-un spațiu de relaxare și intimitate în mijlocul orașului.

Construcția este una solidă, realizată pe structură de grinzi și stâlpi din beton armat, cu ziduri groase din cărămidă, ceea ce îi conferă stabilitate, confort termic și fonic remarcabil.

Apartamentul este situat la hochparterul imobilului, o poziționare care oferă siguranță și intimitate, fiind în același timp ușor accesibil.

Configuraţia iniţială permitea dublu acces în locuintă, accesul direct din zona de parcare fiind asigurată de o scară care în prezent este obturată-

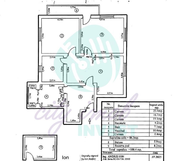
Cu o suprafață utilă de 86 mp, la care se adaugă un balcon de 6 mp, locuința beneficiază de o compartimentare eficientă, cu spatii de depozitare bine gândite. Atmosfera este caldă și elegantă, completată de înălțimea camerelor de 3 m, parchetul și ușile din lemn masiv, geamurile termopan cu rulouri exterioare și centrala termică proprie, ce asigură autonomie și costuri reduse de întreținere.

Aparatul de aer condiționat și lumina naturală abundentă completează senzația de confort modern, într-un decor cu accente clasice, atent păstrat.

Proprietatea dispune, de asemenea, de anexe de depozitare atât în curte, cât și de o boxă de 10 mp situată în pod, detalii practice care sporesc funcționalitatea și valoarea spațiului.

Cartierul Cișmigiu este una dintre cele mai distinse și valoroase zone rezidențiale ale Bucureștiului, îmbinând liniștea cu proximitatea față de centru. În vecinătate se află numeroase clădiri de patrimoniu, instituții publice și de învățământ, dar și cafenele cu personalitate, restaurante discrete și ateliere creative, care dau culoare acestei zone cu parfum istoric.

Accesul este facil către principalele puncte de interes — Universitate, Eroilor, Victoriei, Palatul Parlamentului —, iar mijloacele de transport în comun sunt variate și la îndemână.

Programează vizionarea și descoperă toate detaliile!

Certificatul energetic va fi disponibil la vânzare.

Pentru achizițiile prin credit oferim asistență GRATUITĂ, pentru un proces simplu și sigur.

Citește mai mult

  • Tip apartament
    Apartament
  • Compartimentare
    Semidecomandat
  • Număr camere
    3
  • Dormitoare
    2
  • Număr bucătării
    1
  • Număr băi
    1
  • Geam la baie
    Da
  • Etaj
    Parter
  • Suprafață utilă
    86 mp
  • Suprafață construită
    106 mp
  • Suprafață totală
    92 mp
  • Suprafață curte
    323 mp
  • Disponibilitate
    Imediat
  • Confort
    1
  • Stare interior
    Bună
  • Număr balcoane
    1
  • Număr locuri parcare
    1
  • Imobil
    Bloc de apart.
  • Stadiu construcție
    Finalizată
  • An construcție
    1957
  • Tip construcție
    Cărămidă
  • Număr etaje clădire
    2
  • Are demisol
    Da
  • Are pod
    Da

Facilități

Aer condiționat
Apă
Apometre
Bucătărie închisă
Cadă
Calorifere
Canalizare
CATV
Centrală proprie
Contor electric
Contor gaz
Curent
Curte comună
Faianță
Ferestre PVC
Frigider
Garaj
Gaz
Geamuri termopan
Gresie
Iluminat stradal
Internet
Mijloace de transport în comun
Mobilat parțial
Parcare deschisă
Parchet
Rulouri / obloane aluminiu
Străzi asfaltate
Supraveghere video
Telecomandă poartă acces auto
Telefon
Ușă intrare metal
Uși interior lemn
Vopsea lavabilă
Razvan Ciobanu - City Imob Invest
Razvan Ciobanu
Sales Associate

0727351303


Solicită chiar acum o vizionare
Telefon
Sună acum Solicită vizionare
Necesare:

Site-ul nu poate funcționa corect fără aceste cookie-uri. Vezi cookie-urile

Statistică:

Strângem statistici anonime despre voi, vizitatorii unici, pentru a vă îmbunătăți experiența dumneavoastră. Vezi cookie-urile

Marketing:

Pentru a ne promova mai eficient serviciile noastre, folosim cookies pentru a vă identifica și a vă oferi proprietăți și servicii personalizate. Vezi cookie-urile

Acest site folosește cookies, află detalii. Alege ce tipuri de cookies dorești să permitem: