ID CP2788774
Grădina Icoanei – vilă cu potențial multiplu
ID CP2788774
1,470,000 €
CityImob Invest vă propune spre vânzare o proprietate rară, aflată în inima zonei Grădina Icoanei, chiar lângă Biserica Anglicană – o locație cu adevărat specială, unde astfel de case ajung rar pe piață.
Construită în 1945, casa are pereți din cărămidă și planșeu de beton între parter și demisol, beneficiind de lucrări de întărire a structurii. A fost renovată complet la începutul anilor 2000, iar fațada a fost refăcută.
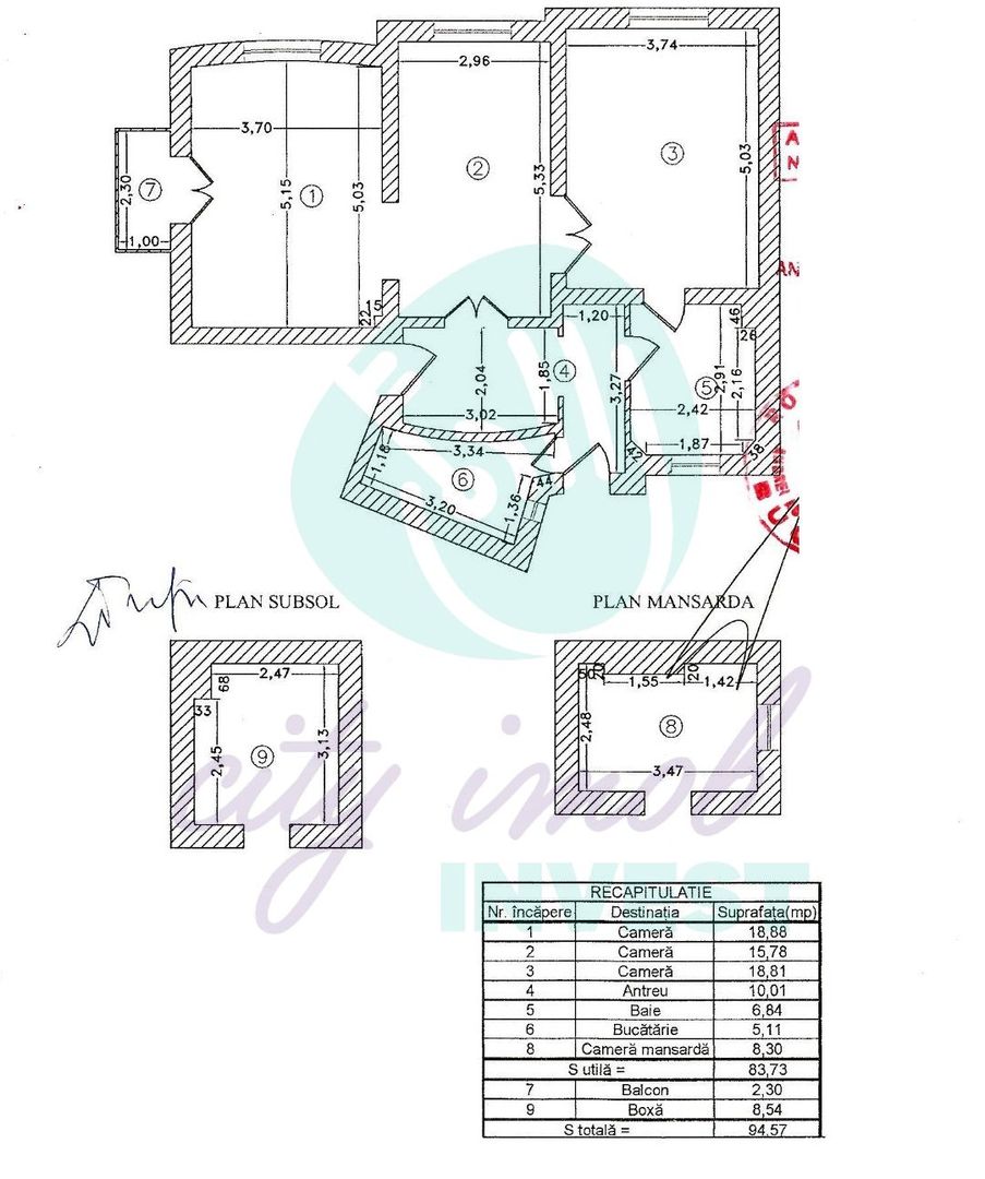
Proprietatea se desfășoară pe demisol, parter, două etaje și o mansardă locuibilă, însumând aproximativ 400 mp. Parterul și cele două etaje au fiecare în jur de 75 mp utili, demisolul dispune de 65 mp, iar mansarda – transformată în spațiu locuibil – oferă alți 75 mp.
La parter, o terasă de aproximativ 50 mp oferă un colț de liniște chiar în mijlocul orașului.
Datorită celor două scări – una principală și una secundară – și accesului direct din stradă, casa se pretează excelent pentru organizarea pe apartamente individuale, dar poate funcționa la fel de bine ca spațiu mixt – cu destinație Horeca, rezidențială sau birouri.
Versatilă și cu o poziționare excepțională, această casă reprezintă o oportunitate de investiție.
Pentru mai multe informații sau pentru a programa o vizionare, vă rugăm să ne contactați.
Oferim consultanță GRATUITĂ pentru achiziții prin credit ipotecar!
Nu avem informații despre clasa energetică. Certificatul energetic va fi disponibil la vânzare.
Vizionarea imobilului se face doar în baza semnării unui acord de vizionare conform art. 2.096-2.102 din Codul Civil.
 
         
         
         
         
         
         
         
         
         
         
         
         
         
         
         
         
         
         
         
         
         
         
         
         
         
         
         
         
         
         
         
         
         
         
         
         
         
         
         
         
         
         
         
         
         
         
         
         
         
         
         
         
         
         
         
         
         
         
         
        